APARTAMENTO RESIDENCIAL
CHAPINERO, BOGOTÁ – COLOMBIA
175 M2
2017

CONCURSO DE VIVIENDA RURAL
CALI, COLOMBIA
120 M2
2019

CASA ITACA
CHOCONTPA, CUNDINAMARCA – COLOMBIA
106 M2
2019

CONJUNTO DE VIVIENDAS ALBALONGA
SOTILEZA, BOGOTÁ - COLOMBIA
800 M2 - 3 CASAS
2005

CASA P&P
VILLETA, CUNDINAMARCA– COLOMBIA
206 M2
2024

CASA QUINTANA
APULO, CUNDINAMARCA – COLOMBIA
280 M2
2015

AGRUPACIÓN EUBEA
SUBA, BOGOTÁ – COLOMBIA
2.500 M2 – 6 CASAS
2009

APARTAMENTO RESIDENCIAL
CHAPINERO, BOGOTÁ – COLOMBIA
175 M2
2017

VIVIENDA PROTOTIPO
EL TORNO, LA MOJANA - COLOMBIA
130M2
2017

CASA CALDERON
VILLA DE LEYVA, BOYACÁ - COLOMBIA
280M2
2016

CANGREJERA PROYECTO ECOTURÍSTICO
GOLFO DE MORROSQUILLO, SUCRE - COLOMBIA
1.170 M2 – 8 CABAÑAS Y SEDE
2012

KIOSKO HAT
PARQUE TAYRONA, MAGDALENA – COLOMBIA
40 M2
2010

CASA QUINTERO
TENJO, CUNDINAMARCA - COLOMBIA
200M2
1992

CASA ROTH
TENJO, CUNDINAMARCA - COLOMBIA
500M2
1992

ESTACIÓN DE LA SABANA (CONCURSO PÚBLICO)
VIVIENDA Y ZONAS COMUNES
LOS MÁRTIRES, BOGOTÁ - COLOMBIA
30.250 M2
2015

SALITRE ALTO - PRODESA, EQUIPAMIENTOS COMUNALES
CIUDAD SALITRE, BOGOTÁ - COLOMBIA
1.700M2
2007

EDIFICIO MONTE ROJO
CERROS DE SUBA, BOGOTÁ - COLOMBIA
3.550 M2 – 12 APARTAMENTOS
2005

EDIFICIO BUGANVILIA
EL VIRREY, BOGOTÁ - COLOMBIA
3.500 M2 – 18 APARTAMENTOS
2015

PLAZA DE LA HOJA (CONCURSO PÚBLICO) CON: CINCO ARQUITECTOS, FARÍAS ARQUITECTOS
VIVIENDA DE INTERÉS PRIORITARIO
PUENTE ARANDA, BOGOTÁ - COLOMBIA
4.800 M2
2013

LABORATORIOS DE MATERIALES Y ESTRUCTURAS, ESCUELA COLOMBIANA DE INGENIERÍA JULIO GARAVITO
BOGOTÁ – COLOMBIA
3.000 M2
2016

PROPUESTA PARA EL HOSPITAL TATAMÁ
PEREIRA, COLOMBIA
35.000m2
2022

CONJUNTO DE LABORATORIOS ESCUELA DE INGENIERÍA JULIO GARAVITO
BOGOTÁ – COLOMBIA
3.900 M2 – 42 LAB, AULAS Y SERVICIOS GENERALES
2016

SEDE OPERATIVA BAZÁN VIEJO
PARQUE NACIONAL NATURAL SANQUIANGA NARIÑO, COLOMBIA
247m2
2024

EL VERJÓN - CONCURSO DE ANTEPROYECTO ARQUITECTONICO
VIA CHOACHI, COLOMBIA
1566m2
2022

EDIFICIO DE POSGRADOS ESCUELA COLOMBIANA DE INGENIERÍA- JULIO GARAVITO
BOGOTÁ – COLOMBIA
5.000 M2
2017

LOS COCOS – SEDE ADMINISTRATIVA - PARQUES NACIONALES NATURALES DE COLOMBIA
VÍA PARQUE ISLA SALAMANCA, MAGDALENA – COLOMBIA
520 M2
2020

SEDE OPERATIVA BOCA DE GUABA
PARQUE NACIONAL NATURAL SANQUIANGA NARIÑO, COLOMBIA
371m2
2024

CASCENTRO DE MEMORIA Y REFLEXIÓN, ESCUELA COLOMBIANA DE INGENIERÍA
BOGOTÁ – COLOMBIA
47 M2
2019

SEDE OPERATIVA Y ADMINISTRATIVA LOS KATIOS
PARQUE NACIONAL NATURAL SAUTATÁ
535m2
2024

SEDE OPERATIVA ALTAMIRA
PARQUE NACIONAL NATURAL MUNCHIQUE
328m2
2024

CENTRO CULTURAL KATZA YAL KALGUIM
RESERVA NATURAL LA PLANADA
NARIÑO, COLOMBIA
2022

SEDE ADMINISTRATIVA CASA PAYÁN
PARQUE NACIONAL NATURAL GORGONA
309m2
2024

SEDE ADMINISTRATIVA ESTACION CIENTIFICA
PERQUE NACIONAL NATURAL GORGONA
597m2
2024

TORRE DE AVISTAMIENTO, MIRADOR
ZONA DE ESTANCIA Y PASARELA
PARQUE NACIONAL NATURAL LA MACUIRA
2022

ESCUELA COLOMBIANA DE INGENIERIA JULIO GARAVITO
BOGOTÁ, COLOMBIA
XXX
2022

SEDE DE CONTROL Y VIGILANCIA EL TORNO PARQUES NACIONALES NATURALES DE COLOMBIA
VÍA PARQUE ISLA SALAMANCA, MAGDALENA – COLOMBIA
184 M2
2020

SEDE ADMINISTRATIVA- PARQUES NACIONALES NATURALES DE COLOMBIA PARQUE NACIONAL NATURAL PISBA
SOCHA, BOYACÁ – COLOMBIA
333 M2
2020

SEDE DE CONTROL Y VIGILANCIA SAN LORENZO – PARQUE NACIONAL SIERRA NEVADA
MAGDALENA – COLOMBIA
144 M2
2020

COMPARTICIÓN, CO-LIVING Y CENTRO DE PENSAMIENTO Y CREATIVIDAD EN MINCA
MINCA, MAGDALENA – COLOMBIA
14 Ha
2020

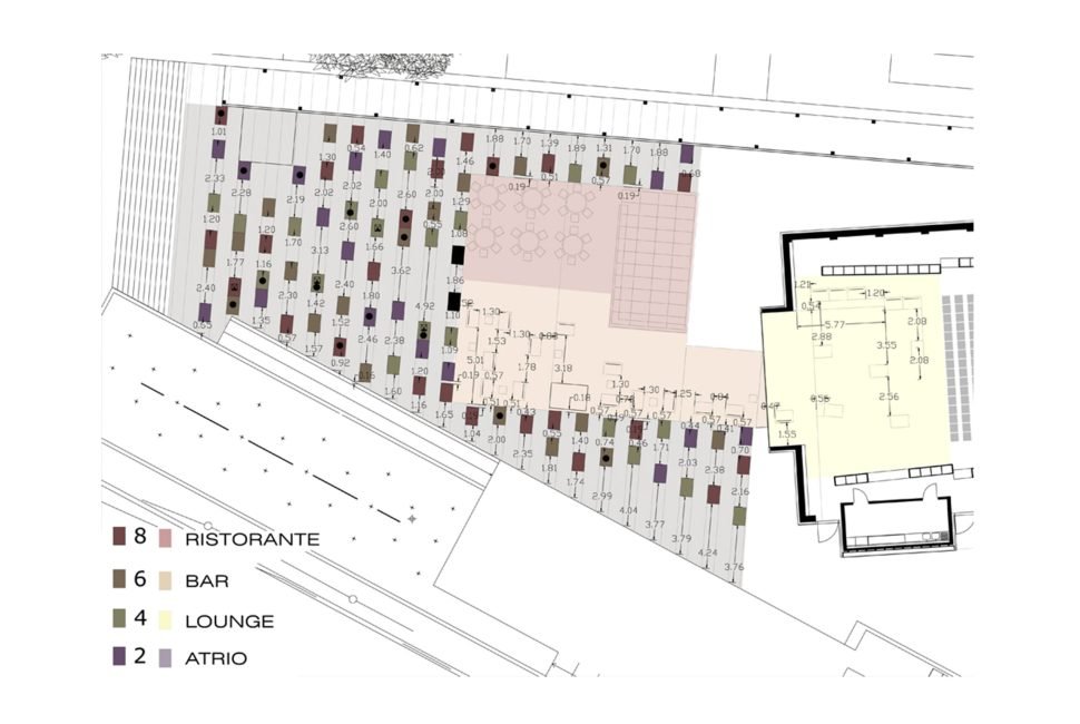
OFICINAS MONCADA ABOGADOS
BOGOTÁ, CUNDINAMARCA – COLOMBIA
7.076,6 M2
2020

SANTUARIO DE FLORA Y FAUNA - SEDE ADMINISTRATIVA- PARQUES NACIONALES NATURALES DE COLOMBIA
PLAYÓN Y PLAYONA, ACANDÍ, CHOCÓ - COLOMBIA
247 M2
2020

ESCUELA BOSQUE AMAZONÍA EMPRENDE
FLORENCIA,CAQUETÁ – COLOMBIA
22 m2
2020

AZUFRAL
PROYECTO ECOCABAÑAS LOS ANDARIEGOS
TÚQUERRES, NARIÑO
2019

HÁBITAT EPÍFITO (1er PUESTO CONCURSO DE IDEAS DE DISEÑO CONJUNTO HABITACIONAL NO CONVENCIONAL)
CHACHAGÜÍ, NARIÑO – COLOMBIA
72 HA
2019

FACULTAD DE MÚSICA- EDIFICIO ENSAMBLE - UNIVERSIDAD DE LOS ANDES (CONCURSO – 1er PUESTO)
BOGOTÁ – COLOMBIA
4.520 M2
2019

PROYECTO DE INFRAESTRUCTURA COMUNITARIA – MANOS A LA OBRA POR LA PAZ – PNUD
VEREDAS DE PUTUMAYO, ANTIOQUIA, CHOCÓ, NARIÑO – COLOMBIA
70 – 200 M2
2018

ALBERGUE ECOTURÍSTICO
LA CALETA ACANDÍ, CHOCÓ – COLOMBIA
372,6 M2
2018

CENTRO COMUNITARIO EL MORROCOY
EL TORNO, LA MOJANA, SUCRE – COLOMBIA
184 M2
2017

CENTRO DE DESARROLLO INFANTIL – CDI
LA BARRA, BUENAVENTURA – COLOMBIA
1.270 M2
2017

CINEMATECA DISTRITAL- LAS AGUAS (CONCURSO)
BOGOTÁ – COLOMBIA
6.800 M2
2014

PATIO POLIFUNCIONAL SEDE COLNODO (PREMIO PLA 2015 – INTERIORISMO)
TEUSAQUILLO, BOGOTÁ – COLOMBIA
35 M2
2014

PABELLÓN DE COLOMBIA EXPO MILÁN 2015 (CONCURSO 2do PUESTO)
MILANO – ITALIA
1.900 M2
2014

MEZQUITA – PATIO PÚBLICO Y CENTRO CULTURAL ISLÁMICO KILBURN
LONDRES, REINO UNIDO
9.400 M2
2011

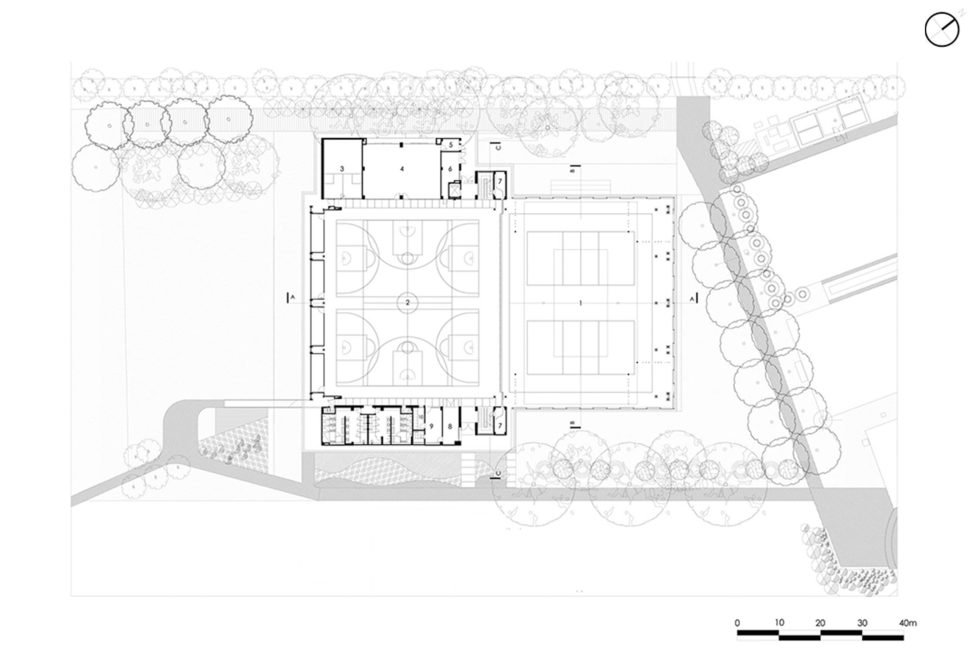
POLIVALENTE “EL OTOÑO” EQUIPAMIENTO DEPORTIVO Y CULTURAL – ESCUELA COLOMBIANA DE INGENIERÍA JULIO GARAVITO
BOGOTÁ – COLOMBIA
4.000 M2
2011

TERMAS SORGETTO
ISLA DE ISCHIA – ITALIA
970 M2
2010

JAZZ PABELLÓN DE MÚSICA Y BAR CON OH.ORGANIZE ARCHITECTURE
CHIASSO, SUIZA
240 M2
2010

CENTRO EDUCATIVO, GUARDERÍA Y SALÓN COMUNAL
VEDABTHANGAL, TAMIL NADU – INDIA
55 M2
2008

BODEGA INGEOMINAS – BODEGA DE MATERIAL RADIOACTIVO
BOGOTÁ – COLOMBIA
430 M2
2008

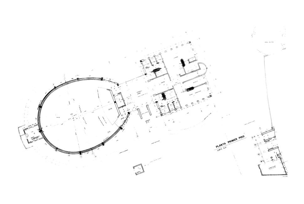
FARO MOMUMENTAL LA LOMA, SAN ANDRÉS – COLOMBIA
699 M2 – 30 M DE ALTURA
CON: ANZELLINI BOHM MATÉ
1991

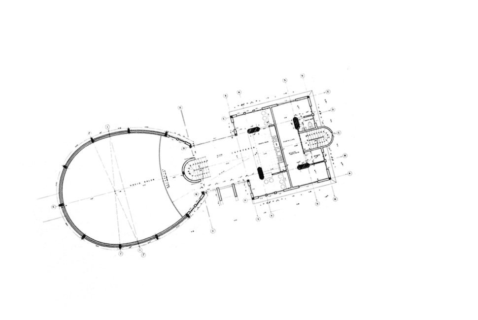
FARO Y MUSEO CLUB NAVAL CON: ANZELLINI BOHM MATÉ
CARTAGENA – COLOMBIA
400 M2 – 15 M DE ALTURA
1988

BUCAR-AMANGA
CONCURSO DE ARQUITECTURA DE ARTE PUBLICO
BUCARAMANGA, COLOMBIA
2017

PARQUE METROPOLITANO ALMA VIVA (PROPUESTA CONCURSO)
VILLAVICENCIO, META – COLOMBIA
213226 m2
2020

PARQUE DE LA MEMORIA (CONCURSO)
MEDELLÍN – COLOMBIA
4.400M2
2018

PLAN DE VIVIENDA PARA FACATATIVA
FACATATIVA, CUNDINAMARCA – COLOMBIA
8.470 HA
2018

MULTIFAMILIAR FUSAGASUGÁ – VIVIENDAS, EQUIPAMIENTOS Y ESPACIO
COMERCIAL
FUSAGASUGÁ, CUNDINAMARCA – COLOMBIA
33.400M2
CON FRANCISCO BOHM
2016

CONJUNTO RIVERA DE LAS GARZAS – CASAS Y APARTAMENTOS
SILVANIA, CUNDINAMARCA – COLOMBIA
39.000M2
CON FRANCISCO BOHM
2016

PLAZA DE MERCADO NUEVO GRAMALOTE (CONCURSO 3er PUESTO)
NUEVO GRAMALOTE, NORTE DE SANTANDER – COLOMBIA
900M2
2014

PLAZA SANTA BÁRBARA (CONCURSO PÚBLICO)
SANTA BÁRBARA, BOGOTÁ – COLOMBIA
7.200M2
2013

PLAN PARCIAL LA GUAPUCHA (VIVIENDA SOCIAL, COMERCIO Y ESPACIO PÚBLICO)
FACATATIVÁ, CUNDINAMARCA – COLOMBIA
23.4 HA
2012